Opslagplaats
€ 335

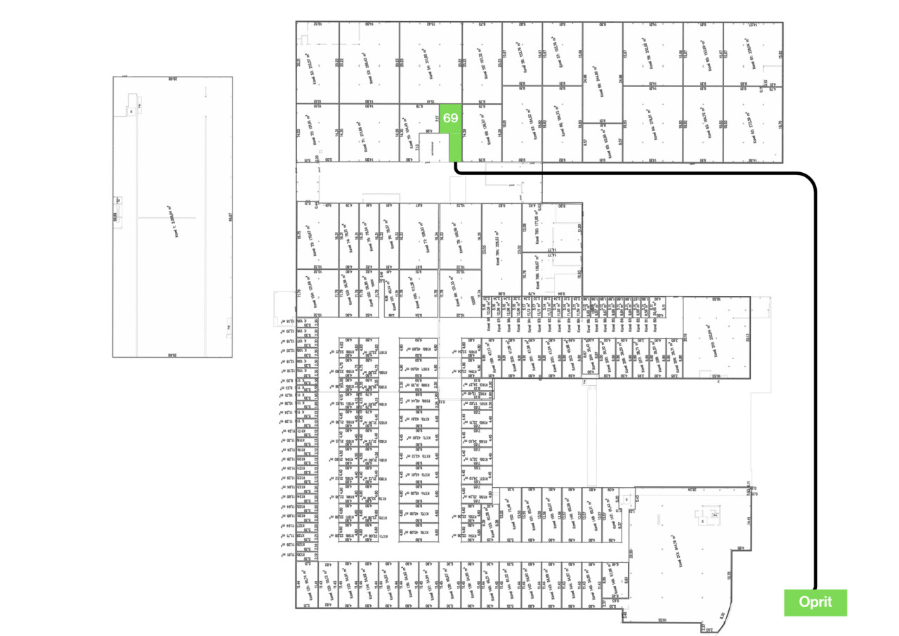
Bazelstraat 250 B69, 9150 Kruibeke
    • delen

Omschrijving Ref.: 7136439

Te huur: opslagruimte van 46m² - Kruibeke


Toegankelijk via deur

Ligging en bereikbaarheid
• Gelegen aan de N419, slechts 5,3 km van E17
• Bushalte op 20 meter
• Vlotte verbinding met het centrum en havengebied
• Parkeerplaatsen beschikbaar voor personeel en bezoekers

Indeling en afwerking
• 46 m² vloeroppervlakte
• Toegang via deur
• Betonnen vloer met hoge draagkracht

Technische voorzieningen
• Automatische lichten dmv bewegingssensoren
• Gemeenschappelijk sanitair
• Verwarming mogelijk

Veiligheid en infrastructuur
• Camerabewaking en nachtverlichting
• Zonnepanelen op de site aanwezig
• Uitstekende isolatie via sandwichpanelen

Flexibiliteit en schaalbaarheid
• Combinatie met andere units mogelijk
• Aankoop op termijn bespreekbaar
• Indeling en afwerking kunnen afgestemd worden op uw activiteit

Huurvoorwaarden
• Standaard jaarcontract met 3 maanden opzeg
• Lage instap: 1 maand huur plus 3 maanden waarborg

Verhuur rechtstreeks via eigenaar: Hertsens Vastgoed
Niet geschikt voor autogerelateerde activiteiten.
beheer@hertsens.eu | 03 250 12 23


Uw contact

Sam Van Elst +32 479 707 215
contact

Details van het pand

Financieel

Prijs
€ 335,00/maand
Prijs/m²/jaar
€ 87,36
Beschikbaarheid
Onmiddellijk

Gebouw

Oppervlakte
46,00 m²

Terrein

Grondoppervlakte
46,00 m²

Meer info over deze eigendom

Bedankt voor je bericht, we contacteren je zo spoedig mogelijk.
Er was een probleem bij het versturen van het formulier, gelieve opnieuw te proberen.
U moet de algemene voorwaarden aanvaarden om dit bericht te kunnen verzenden
(*) Gelieve de verplichte velden in te vullen.