Kmo-unit
€ 1.228

G. Demeurslaan 69, 1650 Beersel
    • delen

Omschrijving Ref.: 7587478

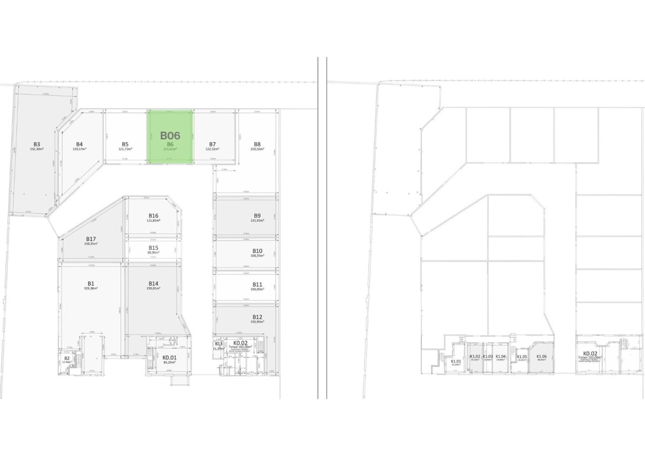
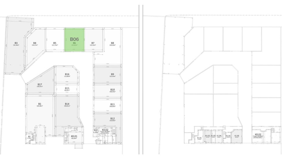
Instapklare KMO-unit van 122 m² met 7,6 m hoogte – Huizingen


Ligging en bereikbaarheid
• Slechts 950 m van het station
• Slechts 3 km van de oprit naar de E19
• Vlotte verbinding met het centrum en omliggende industrieterreinen
• Parkeergelegenheid voor personeel en klanten aanwezig

Indeling en afwerking
• Totale oppervlakte van 122 m² met vrije hoogte van 7,6 meter
• Sectionaalpoort (4,2 m hoog x 4 m breed) + aparte toegangsdeur
• Stevige betonnen vloer met hoge draagkracht
• Natuurlijk daglicht via lichtstraten
• Privékantoor mogelijk of in te richten in de unit
• Mezzanine mogelijk (tot max. 30% van de unit)

Technische voorzieningen
• Elektriciteit: 220V + 380V krachtstroom
• Wateraansluiting aanwezig
• Verwarming mogelijk
• Internet aanwezig
• Gemeenschappelijk sanitair

️ Veiligheid en infrastructuur
• Camerabewaking en nachtverlichting
• Afgesloten terrein met poort
• Goed onderhouden en droge ruimte
• Isolatie via geïsoleerde sandwichpanelen

Flexibiliteit en schaalbaarheid
• Combinatie met andere units mogelijk
• Aankoop op termijn bespreekbaar
• 24/7 toegankelijk

Huurvoorwaarden
• Flexibele looptijden – ideaal voor starters
• Standaardjaarcontract met 3 maanden opzegtermijn
• Lage instapkost: 1 maand huur + 3 maanden waarborg
• Niet geschikt voor autogerelateerde activiteiten

beheer@hertsens.eu | 03 250 12 23
Verhuur rechtstreeks via eigenaar: Hertsens Vastgoed

Virtuele tour: my.3-dee.be


Uw contact

Natacha Kindt +32 479 707 222
contact

Details van het pand

Financieel

Prijs
€ 1.228,00/maand
Beschikbaarheid
Onmiddellijk

Gebouw

Oppervlakte
122,00 m²
Aantal gevels
2
Staat
Goede staat

Terrein

Grondoppervlakte
122,00 m²

Parkeermogelijkheden

Parkings buiten
Ja
Parkings binnen
Nee

Meer info over deze eigendom

Bedankt voor je bericht, we contacteren je zo spoedig mogelijk.
Er was een probleem bij het versturen van het formulier, gelieve opnieuw te proberen.
(*) Gelieve de verplichte velden in te vullen.