Opslagplaats
€ 3.947

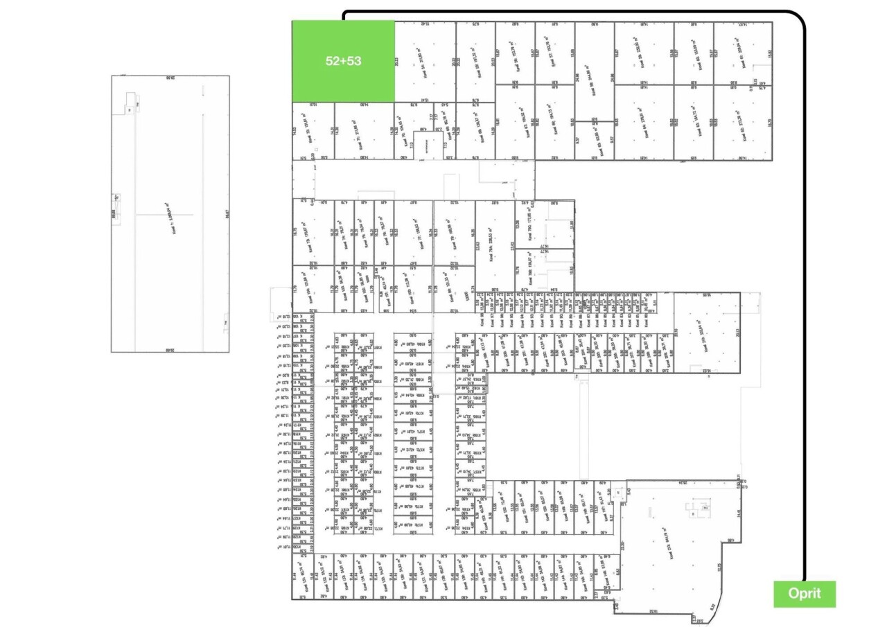
Bazelstraat 250 B53, 9150 Kruibeke
    • delen

Omschrijving Ref.: 7584966

Te huur: 512 m² KMO-unit met kantoor en laadkade – Kruibeke


Ligging & bereikbaarheid
• Gelegen aan de N419, op slechts 5,3 km van de E17
• Bushalte op 20 meter
• Vlotte verbinding met het centrum
• Parkeermogelijkheid voor personeel en klanten
Praktische indeling & afwerking
• Totale oppervlakte: 512 m²
• Vrije hoogte: 2,5 meter
• Sectionaalpoort met toegangsdeur en privatieve laadkade
• Betonnen vloer met hoge draagkracht
• Ingebouwde kantoorruimte
Technische voorzieningen
• Elektriciteitsaansluiting 220V + 380V krachtstroom
• Wateraansluiting aanwezig
• Privé toilet en kitchenette
• Gemeenschappelijk sanitair
• Internetvoorziening
• Verwarming mogelijk
• Zonnepanelen aanwezig
Veiligheid
• Afgesloten terrein met poort
• Camerabewaking
• Nachtverlichting op het terrein
Bouwkwaliteit & onderhoud
• Goed onderhouden unit
• Goede isolatie via geïsoleerde sandwichpanelen
• Droge en veilige ruimte
Flexibiliteit & schaalbaarheid
• Combinatie met andere units mogelijk
• Eventuele aankoop op termijn bespreekbaar
• Maatwerk mogelijk
Huurvoorwaarden
• Lage instapkost: 1 maand huur + 3 maanden waarborg
• Standaard jaarcontract met 3 maanden opzegtermijn
• Looptijd bespreekbaar, ideaal voor starters
• Slechts één unit beschikbaar – wees er snel bij!


Uw contact

Sam Van Elst +32 479 707 215
contact

Details van het pand

Financieel

Prijs
€ 3.947,00/maand
Prijs/m²/jaar
€ 92,52
Beschikbaarheid
Onmiddellijk
Geïndexeerd kad. inkomen
€ 3.146,00
Huurgarantie
3 maanden
Onroerende voorheffing
€ 3.947,00

Ligging

Openbaar vervoer nabij
20m

Gebouw

Oppervlakte
512,00 m²
Aantal gevels
2
Bouwjaar
1993
Renovatiejaar
2022
Staat
Goede staat
Gevelbreedte
25,30 m
Type dak
Platdak
Oriëntatie voorgevel
Oost

Parkeermogelijkheden

Garage
1
Parkings buiten
Ja
Parkings binnen
Ja

Indeling

Keuken
Ja, niet geïnstalleerd
Toiletten
1

Comfort

Handicapvriendelijk
Nee

Specifieke ruimtes

Toiletten M/V
Ja (2)

Energie

Dubbele beglazing
Ja
Elektriciteitskeuring
Ja, conform

Technieken

Elektriciteit
Ja
Water
Ja

Stedenbouw

Bestemming
Industriegebied voor ambachtelijke bedrijven of gebieden voor kleine en middelgrote ondernemingen
Bouwvergunning
Ja
Verkavelingsvergunning
Ja
Dagvaarding
Nee
O-peil
Mogelijk overstromingsgevoelig gebied
G-score
A
P-score
C

Meer info over deze eigendom

Bedankt voor je bericht, we contacteren je zo spoedig mogelijk.
Er was een probleem bij het versturen van het formulier, gelieve opnieuw te proberen.
(*) Gelieve de verplichte velden in te vullen.