Kantoor
€ 375

Izegemsestraat 95, 8800 Roeselare
    • delen

Omschrijving Ref.: 7306828

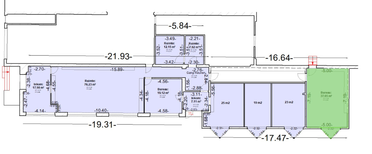
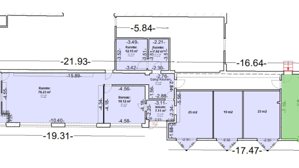
Te huur: Instapklaar kantoor 23 m² met veel lichtinval


Ligging & bereikbaarheid
Gelegen op een vlot bereikbare locatie aan de Izegemsestraat 95 in Rumbeke:
- Slechts 1,8 km van de E403
- 600 m van bushalte
- 3,5 km van het station
- Goede verbinding met het centrum en industrieterreinen

Indeling & afwerking
- Totale oppervlakte van 23 m²
- Indeling in meerdere bureauruimtes mogelijk
- Veel natuurlijk daglicht dankzij grote ramen
- Aparte inkomdeur en mogelijkheid tot signalisatie

Technische voorzieningen
- Elektriciteitsaansluiting 220V
- Verwarming aanwezig
- Internet- en telefonievoorzieningen mogelijk
- Privé sanitair aanwezig

Comfort & veiligheid
- Nachtverlichting op het terrein
- Afgesloten en professioneel onderhouden omgeving

Flexibele mogelijkheden
- Geschikt voor administratie, consultancy, freelancers of kleine ondernemingen
- 24/7 toegankelijk
- Eventuele opslagruimte op dezelfde site beschikbaar

Huurvoorwaarden
- Contract van twee jaar met opzegtermijn van 3 maanden
- Flexibele looptijden bespreekbaar
- Lage instapkost: 1 maand huur + 3 maanden waarborg

Verhuur rechtstreeks via eigenaar: Hertsens Vastgoed
Niet geschikt voor autogerelateerde activiteiten


Uw contact

Sam Van Elst +32 479 707 215
contact

Details van het pand

Financieel

Prijs
€ 375,00/maand
Prijs/m²/jaar
€ 120,00
Beschikbaarheid
Onmiddellijk

Gebouw

Oppervlakte
38,00 m²
Aantal gevels
3
Staat
Deels te renoveren

Terrein

Grondoppervlakte
38,00 m²

Indeling

Keuken
Ja

Comfort

Gemeubeld
Nee

Specifieke ruimtes

Toiletten M/V
Ja

Meer info over deze eigendom

Bedankt voor je bericht, we contacteren je zo spoedig mogelijk.
Er was een probleem bij het versturen van het formulier, gelieve opnieuw te proberen.
U moet de algemene voorwaarden aanvaarden om dit bericht te kunnen verzenden
(*) Gelieve de verplichte velden in te vullen.